
Over 100+ of our A.D.U.
Plan Sets Were Drafted And Approved Between 2020 and 2023

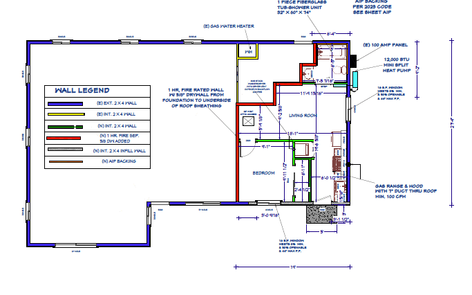
If you’re planning on building an accessory dwelling unit we can produce
city approved plan sets in no time.
Years in the Construction Industry
40+
State Contractors Licenses
And Certifications
5
City Approved A.D.U. Plan Sets
100+

Jim Liston
Our chief designer is Jim Liston. What sets him apart is his real, hands-on construction experience. With 5 different contractor state licenses/certifications, and 40+ years of designing and building, Jim simply knows how to meet the needs of both the homeowner and the local building authorities..
Ask for an A.D.U. Consultation Today
ADU Blueprint Specialists:
Call or Text 951-265-8194
Email : adudrafting@gmail.com